המועצה המקומית מקדמת הקמת קן נוסף לתנועת מכבי צעיר גדרה במזרח המושבה בשטח שיועד במקור לשמש כשטח ציבורי פתוח
אכלוס שכונת גולה מאיר במזרח המושבה מתקדמת. אלפי תושבים חדשים יתווספו עד לסוף השנה הבאה ויזדקקו לשירותים עירוניים נוספים על אלו הקיימים היום במושבה.
גם בתחום תנועות הנוער התכנית היא לפתוח סניף נוסף של תנועת נוער במזרח גדרה על מנת לתת מענה לצרכי הנוער בשכונה, המרוחקת מחלק ממוקדי תנועות הנוער ביישוב.

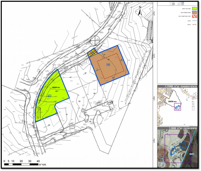
ההצרחה. השטחים המדוברים בחלק המזרחי של גדרה מזרח. בחום – השטח המיועד לקן של נועת הנוער מכבי
זעקת התנועות
היום אנו חושפים כי התכנית של המועצה המקומית היא לפתוח במקום סניך של תנועת מכבי צעיר, תנועת הנוער הגדולה ביותר בגדרה שכבר מפעילה שני סניפים ברחבי המושבה, הסניף הותיק ברחוב פוקס (רחבת הגורן) וסניף החלוץ בבית הספר רעות.
לא ברור מי החליט דווקא לבחור בתנועת הנוער מכבי מכל תנועות הנוער הפועלות ביישוב ולהעניק לה את הזכות לקבלת עוגן כה משמעותי בשכונה החדשה. ההחלטה להגדיל את התשתיות של סניף מכבי צעיר דווקא לא מתקבלת בעין יפה בקרב שאר תנועות הנוער במושבה אשר חלקן נאבקות תקופה ארוכה על מנת לקבל תמיכה יישובית לביסוס מבנה לסניף הראשון שלהן.

הגדולים גדלים. פתיח התכנית להתרחת השטחים עבור קן תנועת הנוער מכבי גדרה
זעקת השכנים
יתרה מזאת, השטח המיועד לסניף החדש תוכנן במקור בכלל לשמש כשטח ציבורי פתוח.
התושבים אשר מתוכננים להתגורר בסמיכות אף הוסיפו בתשלום עבור הקרקע סכומים נוספים בשל השכנות לשטח הפתוח שהבטיח להם נוף פתוח אל השדות המוריקים ממזרח לגדרה.
גם השכנים הופתעו מהתכנית להקמת סניף של מכבי צעיר בשכנות אליהם במסגרת תכנית של המועצה המקומית לבצע הצרחת שטחים בין שני מגרשים בשכונה. מגרש בגודל זהה שתוכנן למבני ציבור יהפוך לשטח ציבורי פתוח והשטח שבמקור הובטח לשמש כגינה ציבורית ישכן את תנועת הנוער האמורה.
השכנים לא מתכוונים להותיר את העניין ללא מאבק והחלו מתארגנים באחרונה בעצומה ציבורית להתנגדות להצרחה האמורה. העצומה נפתח בתיאור ההתנגדות:
מוגשת בזאת, התנגדות לתוכנית המפורטת מס’ 4633360-064 שם התוכנית : החלפת שטחים בין שצ”פ ושטח למבני ציבור-שכונת גולדה, גדרה מטעם בעלי קרקעות ובתים (להלן: “המתנגדים”), בסמוך לשטח המוגדר (להלן: “התכנית”.)
המתנגדים הינם בעלי זכויות במקרקעין הצמודים לתוכנית ו/או סמוכים לה ו/או בסמוך לשטח המגדר כשטח שצ”פ צפויים עקב התוכנית שמטרתה החלפת שטחיים בין מגרש לבנייני ציבור שצ”פ להיפגע באופן אישי מהוראותיה של התוכנית.”
העצומה זמינה למתענינים בקישור באתר מרכז העצומות.

גדרה היום חדשות המושבה גדרה

